| Vitrage en verre feuilleté de sécurité, pare-balles | ||
| EVS030 | Vitrage en verre feuilleté de sécurité, pare-balles | |
|
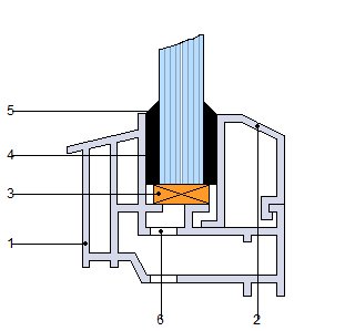
Vitrage en verre feuilleté de sécurité, pare-balle, de 32 mm d'épaisseur, incolore, classe de résistance BR4-S, selon NF EN 1063, fixation sur menuiserie avec profilé continu en néoprène. | ||
Prix |
|
Exportation |
|

UNITÉ D'OUVRAGE EVS030: VITRAGE EN VERRE FEUILLETÉ DE SÉCURITÉ, PARE-BALLES.
CLAUSES TECHNIQUES
Vitrage en verre feuilleté de sécurité, pare-balle, de 32 mm d'épaisseur, incolore, classe de résistance BR4-S, selon NF EN 1063, fixation sur menuiserie avec profilé continu en néoprène.
CRITÈRE POUR LE MÉTRÉ
Surface de la menuiserie à vitrer, selon documentation graphique du Projet, en incluant dans chaque vantail de verre les dimensions du châssis.
CLAUSES PRÉALABLES DEVANT ÊTRE REMPLIES AVANT L'EXÉCUTION DES UNITÉS D'OUVRAGE
DE L'ÉLÉMENT PORTEUR.
On vérifiera que la menuiserie est complètement montée et fixée à l'élément support. On vérifiera l'absence de matières dans les feuillures de la menuiserie.
PROCESSUS D'EXÉCUTION
PHASES D'EXÉCUTION.
Mise en place du profilé de néoprène dans le périmètre de la vitre. Mise en place de la vitre dans le cadre. Signalisation des vantaux.
CLAUSES DE FINALISATION.
L'ensemble sera monolithique.
CRITÈRE POUR LE MÉMOIRE
On mesurera la surface réellement exécutée selon les spécifications du Projet, en additionnant, pour chacune des pièces, la surface résultant de l'arrondissement par excès de chacune de ses arêtes à des multiples de 30 mm.